Results 1 to 6 of 6

Thread: Some specs on adding 200x forks to 125m

  1. #1
    Join Date
    Nov 2014
    Location
    Ga
    --
    12

    Some specs on adding 200x forks to 125m

    I currently own an 85 atc 125m and have ordered 90% of what I need to do an 83-85 200x front suspension mod. I have had an extremely hard time finding specs on the parts other than what years will fit and what needs machining or adapting.

    This thread will be updated as I go along with the build including specs of parts to 1/100 or 1/1000 of an inch. any others who have info for their trikes in a similar conversion(90 or 110) are welcome to add their info or any tricks or roadblocks that they encountered. Links or pictures of drawings and or blueprints would also be appropriate here.

    This is what I have so far:

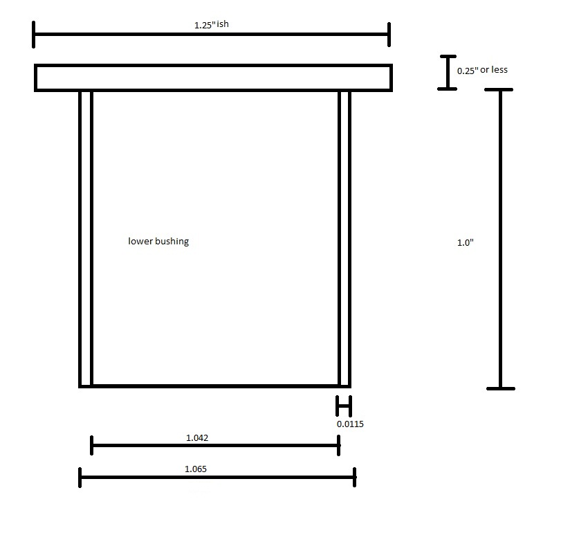
    bearings same both .586 id 1.653 od .510 thick

    125m
    triple tree spacing 7 7/8"
    steering stem inside tube or head pipe (diameter at bearing races) 1.042 in lower race .888 inch at upper race
    top of triple tree to ground (stock) 32" as a vertical line straight down, stock size tire.


    200x
    triple tree spacing 6 1/2 in apart
    steering stem inside tube or head pipe (diameter at bearing races) 1.065 in lower race 1.025 inch at upper race
    front axle 13 1/16" long .590 dia .785 dia at left attach point
    fork diameter 1.297 in or 33 mm
    5.5" stem center to fork center, 11" fork center to fork center

    Some possible bushings for triple tree if needed. this is staying with 125m head pipe/steering stem and 125m bearings frame stays stock.


    This will be a constant updated thread as I do this mod. please be patient
    Attached Thumbnails Attached Thumbnails Click image for larger version. 

Name:	upper bushing.jpg 
Views:	46 
Size:	40.3 KB 
ID:	223715   Click image for larger version. 

Name:	lower bushing.jpg 
Views:	38 
Size:	38.4 KB 
ID:	223716  
    Last edited by 85atc125mguy; 11-19-2015 at 09:56 PM. Reason: added specs

  2. #2
    Join Date
    Feb 2011
    Location
    Surprise, AZ
    --
    2,428
    I think you can save sometime and money if you talk to- O'Deuce on this forum

    Sent from my SM-G386T1 using Tapatalk
    Email- onformula1@hotmail.com Rebuilt, Revalved, custom springs, lowering, forks & shocks, Custom Suspension, all brands, 2-3-4 wheeler's- PM or Email with questions.

    ***Check out my album for cool pictures*** http://www.3wheelerworld.com/album.php?albumid=2527

    As always- Everything I post is IMHO.

  3. #3
    Join Date
    Nov 2014
    Location
    Ga
    --
    12
    Thanks onformula1,

    The point of this post was to give others the info that I had to mic and measure my self. I have been a machinist, a welder, and the last 15 years worked on aircraft for a major legacy carrier. Ill pm ol' deuce for specific questions, but I think each post just elaborates to the knowledge and information available to this great and wonderful site. Every time I think I have figured something out on my machine, I read about another or better way of doing it.

    Together we are a lot better than on our own with all our knowledge, experiences and different places in our lives.

  4. #4
    Join Date
    Aug 2014
    Location
    South Louisiana
    --
    1,915
    '84-'86 200s is a much better fit and keeps the fat tire, all that you have to do is grind the steering stop off of the frame.
    "Roll on 3"

    RIP Ol' Deuce

    "Long Live the ATC"
    Building: ATCr125x
    Riding: ATC200sx
    "I am not a mechanic, mechanics get paid for this. I do it because I enjoy it."

  5. #5
    Join Date
    Nov 2014
    Location
    Ga
    --
    12
    I know that there are direct swap front ends, but I already own a 200x set of shocks, triple trees and axel/spindle assy.

    Being married with 3 kids, fabricating is a form of therapy for me.

  6. #6
    Join Date
    Nov 2014
    Location
    Ga
    --
    12
    Click image for larger version. 

Name:	2Zz.jpg 
Views:	431 
Size:	258.1 KB 
ID:	223714 This is a 110 build from ol'deuce. I love the look of the square front end.

//ArrowChat Integreation Code //